Zakup mieszkania to jedna z najważniejszych decyzji w życiu. Wiąże się z wieloma emocjami, ale i koniecznością przyswojenia wiedzy z zakresu architektury i budownictwa, co dla większości osób może być wyzwaniem. Jednym z najważniejszych dokumentów, z którym spotykasz się podczas poszukiwań nowego domu, jest plan mieszkania. W artykule tym wyjaśnimy, jak go czytać i na co zwrócić szczególną uwagę, aby wybór był przemyślany i satysfakcjonujący.
Czym jest plan mieszkania?
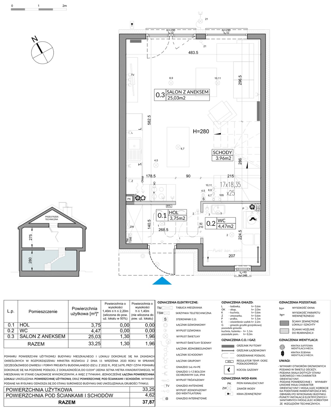
Plan mieszkania to rysunek techniczny przedstawiający układ przestrzenny lokalu. Zawiera informacje na temat rozkładu ścian (nośnych oraz działowych), wymiarów pomieszczeń, ich funkcji oraz rozmieszczenia instalacji i wyposażenia. Zwykle dołączony jest do niego opis z powierzchniami użytkowymi poszczególnych pokoi oraz legendą wyjaśniającą symbole używane na planie.
Na przykładzie planu domu w warszawskiej inwestycji Nova Magdalenka 5 możemy zobaczyć, jak dokładnie wygląda plan lokalu na parterze i piętrze (suma obu powierzchni wynosi 72,9 m²). Przeanalizujmy ten plan krok po kroku.

Kluczowe elementy planu – jak je zrozumieć?
Wymiary pomieszczeń i powierzchnie użytkowe
Każdy plan zawiera szczegółowe informacje o powierzchniach użytkowych pomieszczeń. Warto zwrócić uwagę na różnicę pomiędzy powierzchnią łączną a powierzchnią użytkową. Powierzchnia łączna zawiera również powierzchnię pod schodami oraz ścianami możliwymi do rearanżacji. Na omawianym planie ściany działowe oznaczone są jasnoszarym kolorem i są znacznie cieńsze od ścian zewnętrznych. Te ściany, w razie potrzeby, będziesz mógł w przyszłości przesunąć lub zupełnie usunąć. Należy również zwrócić uwagę na to, że rysunki prezentują budynek w stanie surowym, co oznacza, że wymiary mogą się różnić po wykończeniu, ze względu na grubość tynków.

Symbole i oznaczenia
Plany deweloperskie pełne są symboli i oznaczeń, które informują o różnych elementach w lokalu. Pod planem znajduje się tabela z legendą, z którą warto się zapoznać. Zwróć uwagę na umiejscowienie grzejników, gniazd elektrycznych, świateł, wysokość parapetu oraz kierunek otwierania okien, co może okazać się niezwykle istotne przy aranżowaniu wnętrza.
W legendzie znajdują się również informacje o elementach takich jak sterownik CO oraz gniazda antenowe, które mogą być kluczowe dla przyszłych mieszkańców pod kątem rozmieszczenia sprzętów RTV i AGD.

Instalacje i urządzenia techniczne
Plany mieszkań zawierają także szczegóły dotyczące instalacji technicznych, które warto dokładnie przeanalizować. Na przykład w omawianym planie znajdziesz informacje o lokalizacji kotła gazowego. Ważne jest też, aby sprawdzić rozmieszczenie punktów pionów kanalizacyjnych czy zaworów wody.
Na co jeszcze zwrócić uwagę?
Światło dzienne i okna
Światło naturalne odgrywa kluczową rolę w codziennym komforcie życia. Przy analizie planu sprawdź rozmieszczenie okien oraz ich wielkość. Plan w naszym przykładzie podaje wysokości okien oraz parapetów (oznaczenia ho oraz hp), co pozwala ocenić, jak światło będzie wpadać do wnętrza o różnych porach dnia. W rogu planu znajduje się róża wiatrów, która pokazuje usytuowanie lokalu względem stron świata.

Wysokość pomieszczeń
Zwróć uwagę na wysokość pomieszczeń na każdym piętrze (również na poddaszu, jeśli jest użytkowe i jest taka informacja na planie). Na przykładzie planu domu w osiedlu Ogrody Przyjaciół 5 widzimy, że wysokość na parterze wynosi 280 cm., a na piętrze 275 cm. Jest to istotna informacja przy planowaniu aranżacji i zakupu mebli.

Czytanie planu mieszkania deweloperskiego może wydawać się skomplikowane, ale z odpowiednią wiedzą i zrozumieniem kluczowych elementów, staje się to dużo łatwiejsze. Zwróć uwagę na układ pomieszczeń, wymiary, instalacje techniczne oraz możliwość późniejszej rearanżacji.
Masz pytania lub wątpliwości?
Śmiało zapytaj naszego opiekuna handlowego 22 545 70 20 lub wypełnij formularz kontaktowy – w Novisa Development jesteśmy po to, by Ci pomóc, bo żadne pytanie nie jest zbyt błahe, gdy chodzi o wybór wymarzonego domu.